An der Gemeindeversammlung vom 5. Dezember 2019 wurde der Neubau eines Pavillons für die Tagesstrukturen ZickZack der Primarschule Obfelden beschlossen. Seit Februar 2021 wird nun auf dem Areal der Primarschule gebaut. Damit wird die Rundumbetreuung der Schulkinder ab Ende 2021 zentralisiert möglich sein.

Die Primarschule Obfelden bietet seit 2010 die ganztägige Betreuung der Schulkinder an. Das sogenannte „ZickZack“ bietet 9 Module an. So können Eltern individuell wählen, ob nur eine Stunde am Morgen benötigt wird, Mittag und Nachmittag oder gleich der ganze Tag. Eine Übersicht bietet die Website der Primarschule Obfelden.
Bisher ist das Angebot in der ehemaligen Hauswartwohnung und dem ehemaligen Kindergartenraum beim Chilefeld untergebracht. Um der steigenden Nachfrage nach Betreuungsplätzen gerecht zu werden, entschied man sich 2019 für eine Zentralisierung und Ausbau des Angebots.
Spatenstich war im Februar
Am 9. Februar 2021 erfolgte der Spatenstich für den Bau des 2-stöckigen Pavillons. Der 1.7 Millionen Franken teure Neubau entsteht auf einer freien Wiese zwischen Spielplatz und Jugendtreff. Das Gebäude bietet flexibel nutzbare Räume für Essen, Spielen und Hausaufgaben lösen. Zudem sind Rollen- und Bewegungsspiele möglich, aber auch Rückzugsmöglichkeiten vorhanden.
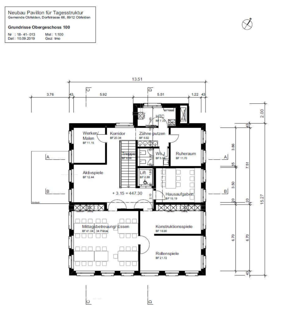
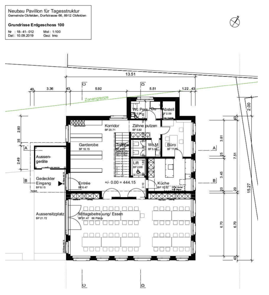
Im Erdgeschoss sind Garderoben, Essraum, Küche, Administration und Toiletten vorgesehen. Im Obergeschoss sind ein weiterer Essraum, Aufenthalts- und Ruheräume geplant. Die Räumlichkeiten bieten Platz für bis zu 100 Kinder und Erwachsene. Eine spätere Aufstockung ist möglich.
Die ursprünglich auf Juni 2021 vorgesehen Fertigstellung ist wegen Verzögerungen nicht möglich. Der Bezug des Pavillon ist nun auf anfangs November 2021 geplant.







