An der Gemeindeversammlung vom 4. Dezember wird unter anderem über einen Planungskredit für die Erweiterung der Mehrzweckhalle entschieden. obfelden.info fasst die wichtigsten Punkte aus dem Beleuchtenden Bericht der Gemeinde zusammen.
Wieso soll die Mehrzweckhalle Zendenfrei ausgebaut werden?
Ziel ist es, den wachsenden Bedürfnissen von Schule und Vereinen gerecht zu werden und zusätzliche Hallenkapazitäten bereitstellen zu können, so der Beleuchtende Bericht.
Im Frühling schrieb die Gemeinde in ihrem Bulletin, dass die bestehenden Sporthallen für die Primar- und Sekundarschulen bis 2038/2039 genügen würden. Allerdings ist mittelfristig geplant, die Turnhalle Chilefeld zu ersetzen. Diese erfülle die Ansprüche an einen zeitgemässen Turnunterricht nicht mehr.
Zudem wolle man die Bedürfnisse der lokalen Vereine berücksichtigen. Dort ist das Bedürfnis nach mehr Hallenkapazitäten gemäss verschiedenen Medienberichten und Aussagen der Vereine im Säuliamt sehr gross.
Wie soll die Mehrzweckhalle Zendenfrei erweitert werden?
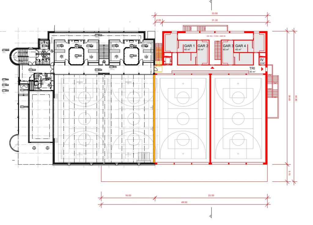
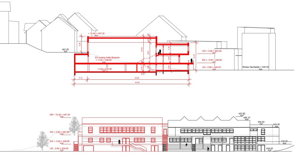
Die bestehende Doppelturnhalle soll in Richtung der Wohnblöcke an der Schmittenstrasse erweitert werden. Eine Machbarkeitsstudie zeigte verschiedene Varianten auf. Die Gemeinde plant nun die Erweiterung um zwei Hallen. Favorisiert wird dabei ein Ausbau zur Dreifachturnhalle und eine abgetrennte vierte Halle.
Was für eine Variante gebaut wird, ist nicht Bestandteil dieser Abstimmung, sondern wird dann mit dem Projektierungskredit im Detail vorgestellt.
Gemäss Gemeindebulletin sollen mit der Erweiterung auch die aktuell relativ beengten Platzverhältnisse in den beiden bestehenden Geräteräumen (gemischte Nutzung als Stuhllager und für Sportgeräte) optimiert werden können.


Die Halle ist bald 50-jährig. Lohnt sich da ein Anbau?
Gemäss Beleuchtendem Bericht wurde bei der ursprünglichen Planung Wert auf niedrige Unterhaltskosten gelegt. Die Anlage verfügt daher über ein für die damalige Zeit innovatives Haustechnikkonzept mit Wärmepumpenanlage, Erdkollektoren und Sonnenkollektoren. Derzeit seien abgesehen von der Wärmeerzeugung keine grösseren Instandsetzungen am Bestandsgebäude vorgesehen, da sich das Gebäude insgesamt in einem guten baulichen Zustand befindet.
Ist beim Bau noch mit Überraschungen zu rechnen?
Es sei mit keinen Altlastensanierungen zu rechnen. Es würden auch keine besonderen Massnahmen wegen Lärm oder technischer Gefahren benötigt. Gefahr droht einzig durch Hochwasser vom Lindenbach. Allerdings sei geplant, bis 2028 den Bachdurchlass unter der Dorfstrasse zu erweitern und einen Damm zwischen Bach und Sportplatz zu erstellen. Damit würde die Gefahr deutlich reduziert und es wären keine zusätzlichen Schutzmassnahmen nötig.
Wie hoch sind die Kosten für die Erweiterung?
Im Dezember wird nur über die Kosten für die Planung abgestimmt. Diese betragen 210’000 Franken. Die Baukosten werden auf 16,2 Millionen Franken geschätzt, allerdings in dieser frühen Phase mit einer Kostenungenauigkeit von plus/minus 25 Prozent.
Wieso lehnt die Rechnungsprüfungskommission (RPK) den Antrag ab?
Die RPK moniert in ihrer Begründung, dass eine zusätzliche Halle (nicht zwei) die Bedürfnisse der Schulen langfristig abdecke. Für die Vereine würde eine Halle die Kapazität Zendenfrei ebenfalls um 25 Prozent erhöhen. Zudem würde nur eine Halle die Investitionskosten und die zusätzlichen Unterhaltskosten deutlich senken. Wie viel tiefer die Kosten wären, geht aus der Begründung nicht hervor.
Da der Planungskredit bereits zwei Hallen vorsieht und nicht eine Variante für eine Halle beinhaltet, lehnt die RPK den Antrag ab.
obfelden.info hat bei der RPK nachgefragt, ob es finanziell nicht Sinn macht gleich zwei Hallen zu bauen, als in ein paar Jahren evtl. erneut eine einzelne Halle zu erstellen. RPK-Präsident Ralph Kleiner sagt dazu, dass sich Obfelden den Bau der vorgeschlagenen Variante mit 16,2 Mio. Franken Investitionskosten nicht leisten kann.
Wie geht es bei einer Annahme des Antrages weiter?
Gemäss Beleuchtendem Bericht ist dann ein Planwahlverfahren vorgesehen. Das heisst, es würden acht Generalplanerteams ausgewählt. Diese erstellen danach eine Offerte. Das vorteilhafteste Angebot werde prämiert. Das siegreiche Generalplanerteam werde nach dem Verfahren unter Vorbehalt der weiteren Kreditgenehmigungen (Urnenabstimmung) mit der Ausarbeitung des Vor- und Bauprojektes beauftragt.
Wo kann ich mehr zur Vorlage erfahren?
Der Beleuchtende Bericht der Gemeinde umfasst weitere Punkte.
– Beleuchtender Bericht
Die Gemeindeversammlung findet am Donnerstag, 4. Dezember um 19.30 Uhr in der Mehrzweckhalle Zendenfrei statt.








